Penthouse T3 de Luxe à Vila Nova de Gaia | Golden Hour Real Estate
1 345 000 €
Penthouse T3 de Luxe à Vila Nova de Gaia | Golden Hour Real Estate
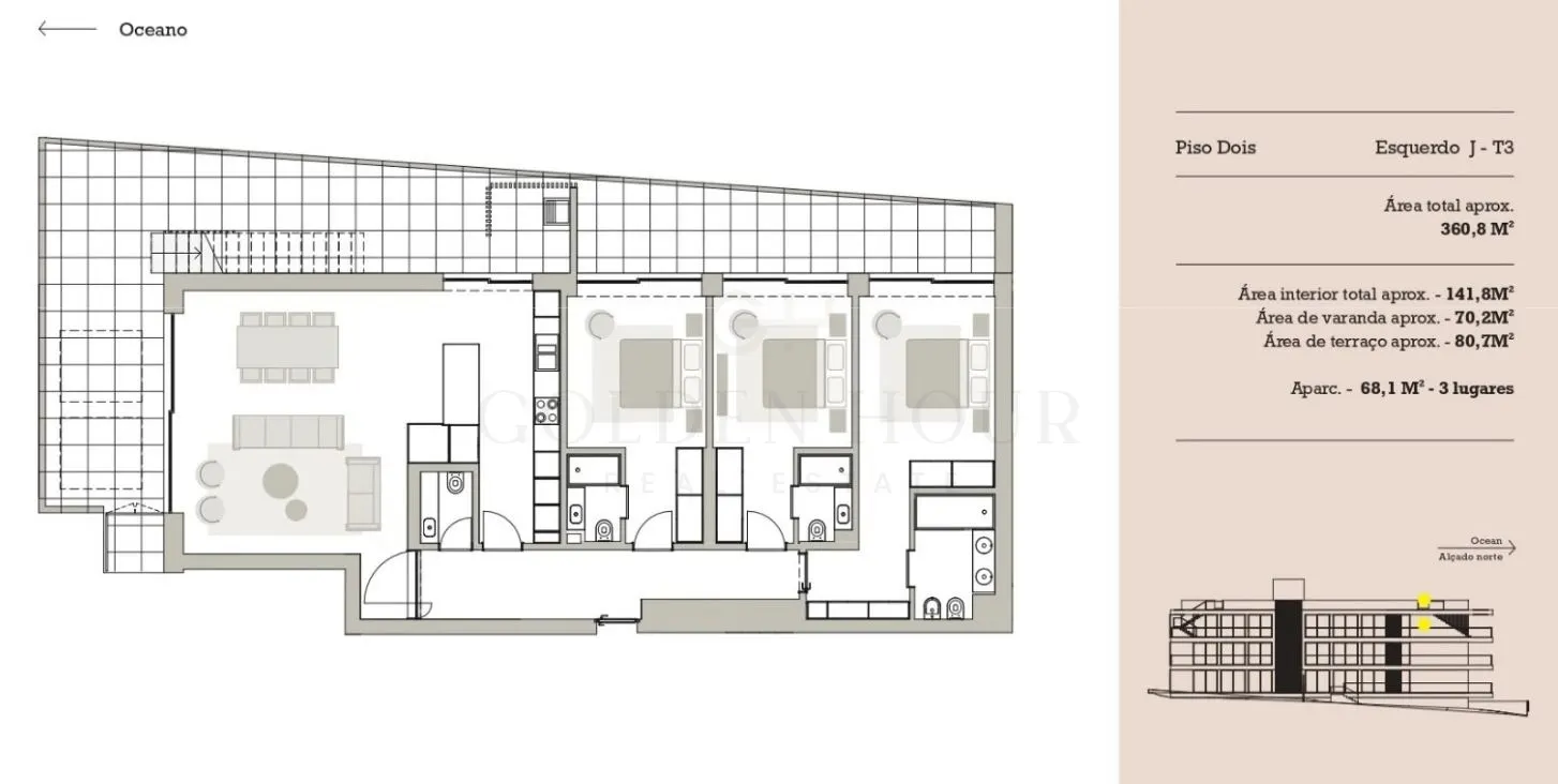
Sublimez votre quotidien dans ce magnifique Penthouse T3, un chef-d'œuvre architectural qui couronne la skyline de Vila Nova de Gaia. Présentée par Golden Hour Real Estate, cette résidence au dernier étage a été conçue pour ceux qui exigent l'excellence, alliant une intimité absolue à une esthétique contemporaine d'avant-garde.
Entièrement automatisée, le penthouse dispose d'un système domotique de dernière génération, permettant un contrôle intelligent de tous les espaces — de l'éclairage au climat — d'un seul geste. Les intérieurs vastes et fluides s'ouvrent sur de généreuses terrasses, créant une expérience de vie où la lumière naturelle est reine. Avec des finitions d'exception et un emplacement unique, c'est le choix ultime pour un lifestyle sophistiqué et technologique.
Type de propriété
Appartement
Typologie
3 Chambres
Objectif
Vente
Etat
Neuf
Prix
1 345 000 €
Année de construction
2025
Pays
Portugal
Département
Porto
Ville
Vila Nova de Gaia
Lieu
Canidelo
Zone
N/D
Crédit à domicile et simulateur IMT
Caractéristiques générales
Pièces
|
Pièces |
Lieu |
Étage |
Murs |
Plafonds |
Commentaires |
|
| |
O que é a pesquisa responsável
Esta pesquisa permite obter resultados mais ajustados à sua disponibilidade financeira.